Конденсационный котел Buderus Logamax plus GB172-42 i (черный) - Купить в Москве | Отзывы

            Москва                   Санкт-Петербург

+7 (495) 647-67-17        +7 (812) 642-58-74
                                         +7 (812) 642-58-94
0
Buderus (Германия)

В новом поколении настенных газовых конденсационных котлов Buderus Logamax plus GB172-42 i воплощены последние тренды мира термотехники.

Вид топлива: Газ
Камера сгорания: Закрытая
Мощность, кВт: 41.9
Max расход природного газа, м³/час: 4.32
Max расход сжиженного газа, кг/час: 3.18
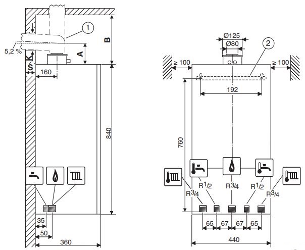
Ду подключение газа (вход), дюймы: 1/2"
Диаметр дымохода, мм: (60/100)/(80/125)
Вес, кг: 51
Ду подключение отопления, дюймы: 3/4"
Количество контуров: Одноконтурный
Отапливаемая площадь, м2: 420
КПД %: 100.6
Тип монтажа: Настенный
Гарантия: 2 года
Высота, мм: 840
Ширина, мм: 440
Длина, мм: 350

Полное описание
Отзывы (0)
Документация
Вопросы и ответы (0)

Дизайн и конструкция котла удачно сочетают инновационные технологии Buderus с привлекательным внешним видом. Для изготовления фронтальной панели использовано ударопрочное стекло Titanium Glass. Котлы представлены в двух исполнениях - чёрном и белом. Это первый случай, когда котёл из устройства для отопления дома и подогрева воды превратился в эффектный элемент интерьера.

Теплообменник WB5 из алюминиевого сплава ALU plus отличается надёжностью, долговечностью и уникальной эффективностью. Кроме того, его очень легко чистить и обслуживать: уникальная конструкция аппарата обеспечивает быстрое и без затруднений проведение сервисных работ.

Откидная панель котла скрывает знакомую и надёжную автоматику BC25, которая гарантирует лёгкость настройки функций и управления устройством. В котлах этой модели рядом с BC25 может быть интегрирована фирменная автоматика Logamatic RC300, позволяющая существенно расширить функционал отопительной системы. Этой автоматикой также можно управлять с основной панели. Модель GB172i совместима с регулятором Logamatic TC100 - ещё одной инновационной разработкой Buderus, предназначенной для удалённого управления котлом через интернет с помощью специального бесплатного приложения для смартфона.

Использование обновлённой модулируемой горелки позволяет уменьшить расход газа и сократить затраты на энергоносители в период межсезонья. Стоит отметить, что комплектация системы конденсационным теплообменником обеспечивает значительную экономию газа (до 15%), и это объясняется особенностями конструкции камеры сгорания, теплообменника, общим принципом работы устройств такого типа. Котёл GB172i является устройством А-класса, то есть получил наивысший бал по Европейской системе оценивания энергоэффективности оборудования. В режиме ожидания котёл потребляет всего 2 Вт энергии.


Оставьте отзыв

Задайте свой вопрос

Остались вопросы?
Оставьте заявку и мы с Вами свяжемся!

г. Санкт-Петербург, ул. Типанова, дом 16 I Б. Сампсониевский пр. 92. (закрыт на ремонт)  +7 (812) 642-58-74, +7 (812) 642-58-94 
Youtube  WhatsAppTelegram

© 2007-2026 ТеплоТехника. Все права защищены.
Обращаем ваше внимание, что информация сайта носит исключительно информационный характер и ни при каких условиях не является публичной офертой, определяемой положениями Статьи 437 (2) Гражданского кодекса РФ.
Политика конфиденциальности